Locinox Verticlose-2 - Hydraulic Self Closer
Enhance your gate system with the Locinox Verticlose-2 Hydraulic Gate Closer. Designed for gates up to 150kg and 1.5 meters wide, this adjustable and retrofittable gate closer ensures safe and convenient self-closing functionality. With adjustable speed, final snap, and rigorous testing in extreme conditions, the Verticlose-2 is perfect for external metal gates. Upgrade your gates to self-closing with ease and reliability.
Introducing the Locinox Verticlose-2 Hydraulic Gate Closer: The Ultimate Solution for Upgrading Your Gates to Self-Closing
Upgrade your gates to a new level of convenience, safety, and functionality with the Locinox Verticlose-2 hydraulic gate closer. Specifically designed for gates weighing up to 150kg and spanning up to 1.5 meters wide, this adjustable gate closer is a popular choice among gate owners seeking reliable and efficient self-closing capabilities.
One of the standout features of the Verticlose-2 is its versatility. This gate closer can be easily retrofitted to existing gates, saving you the hassle and expense of replacing the entire gate system. Whether you have swing gates or sliding gates, the Verticlose-2 can be seamlessly integrated into your setup, enhancing both convenience and security.
Safety is paramount when it comes to gate closures, and the Locinox Verticlose-2 excels in this aspect. With its adjustable speed and final snap, you can fine-tune the closing mechanism to ensure a smooth and controlled gate closure. The final snap feature provides an audible confirmation that the gate is securely closed, providing you with peace of mind and added security.
To guarantee exceptional performance in any environment, the Locinox Verticlose-2 has undergone rigorous testing under extreme conditions. From scorching heat to freezing cold, this gate closer has been tested from -30 °C up to +70 °C, proving its resilience and reliability. No matter the weather conditions, the Verticlose-2 will deliver consistent performance and ensure the smooth operation of your gates.
The Locinox Verticlose-2 is specifically engineered for use with external metal gates, making it an ideal choice for outdoor applications. Its powder-coated aluminum housing ensures durability and resistance to rust and corrosion, ensuring long-lasting performance even in challenging weather conditions.
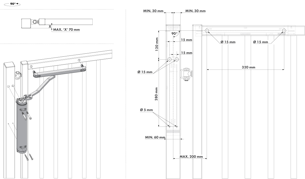
The Verticlose-2 comes complete with rails suitable for both 90° and 180° gate situations, offering flexibility and compatibility with various gate configurations. Whether your gates swing inward or outward, this gate closer is designed to accommodate both left and right handed gates, providing a universal solution for your needs.
Reliability is a key aspect of the Verticlose-2, as demonstrated by its extensive testing. With a remarkable 500,000 movement test, this gate closer is built to withstand frequent usage and provide consistent performance over time. You can rely on the Verticlose-2 to meet your gate closure needs without compromise.
Upgrade your gates to the pinnacle of convenience and safety with the Locinox Verticlose-2 hydraulic gate closer. Its adjustable features, thorough testing, and retrofit capability make it the ultimate solution for achieving self-closing functionality. Trust in the durability, versatility, and superior performance of the Verticlose-2 to enhance the security and convenience of your gate system.
|
Ask Us a Question About This Product
Have a question about this product? Fill in the form below and a member of our team will be in touch in due course.
If you have a question about multiple products, please use our contact us form.


